
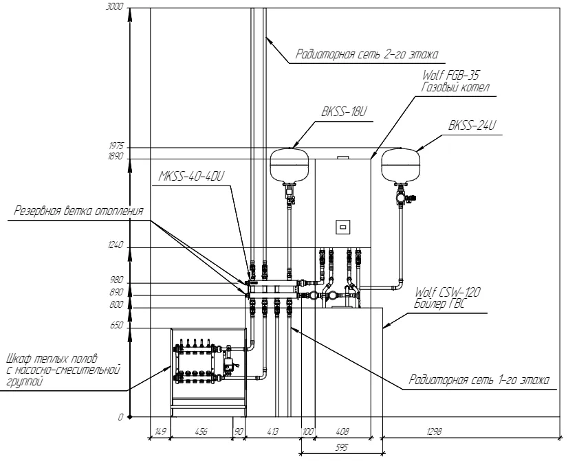
Схема отопления двухэтажного дома с настенным котлом без лишних циркуляционных насосов
Основные характеристики
Описание
Схема отопления частного дома площадью до 250 кв.м настенным одноконтурным газовым котлом со встроенным частотным насосом + бойлер на прямую от котла.В предложенной компановке используется котел WOLF FGB 35
Описание потребителей:
- Радиаторы отопления могут быть организованы в несколько веток для удобства балансировки
- Теплые полы на базе насосно-смесительных узлов требующими подпора от котлового насоса
- Резервный торцевой контур
Преимущества данного решения:
- Сверхнадежная нержавеющая система отопления с минимальным кол-вом соединений и воздухоотводчиков
- Компактность системы по монтажному пространству стены.
- Энергоэффективная обвязка за счет оптимально подобранного проходного сечения DN20 и габаритных размеров с межоссевым расстояникм 90 мм.
- Небольшой вылет от стены 50 мм позволит компактно расположить все элементы системы.
- Экономичное решение с минимальной стоимостью владения за счет типоразмера ¾″ (запорная арматура и фитинги в размере ¾″ вместо 1″ сэкономят значительные средства при первичной закупке и последующих сервисных заменах).

- Точная регулировка вертикального положения и высоты коллектора без самого коллектора!
- Коллектор устанавливается уже на полностью отрегулированный ложемент!
- Презентабельный внешний вид.
- Возможность дополнительного крепления к полу с момощью шпилек М10 и забиваемых резьбовых анкеров.
✅ Последовательность действий по обслуживанию бака
Шаг 1. Если у Вас один бак в системе, тогда нужно остановить котел.
Шаг 2. Перекройте кран между баком и системой, если он у Вас есть.
Шаг 3. С помощью дренажного крана спустите давление. Если у Вас нет дренажного крана - придется отсоединить бак от системы, предварительно подставив емкость сопоставимого с баком объемом.
Шаг 4. Подкачайте бак с помощью компрессора до требуемого давления. Для обычного частного дома высотой не более 10 м - это 1.5 бара, что соответствует заводскому значению новых баков. Общее правило такое: давление воздуха в полости бака должно быть меньше рабочего на 0.3 бара. Если РБ не держит давление - замените его мембрану или бак целиком.
Шаг 5. Установите бак на место и откройте все краны.
⚠ Какие риски возможны?
- Будьте осторожны, если Вам придется демонтировать бак для слива воды - Вы можете повредить трубопроводы!
- При скручивании резьбы, если она пристыла - можно свернуть фитинг и разгерметизировать систему!
- Регулярно проверяйте не перегибает ли нагрузка от бака с теплоносителем трубопроводы!
☝ Рекомендации специалистов
- Не забывайте проверять расширительный бак хотя бы раз в год. Если отсутствует давление в воздушной камере или в процессе работы котла меняется рабочее давление или, что еще хуже, срабатывает предохранительный клапан — срочно проведите внеплановое обслуживание расширительного бака.
- Если наблюдается внешняя утечка расширительного бака — необходимо его срочно заменить. Если дефектный бак имеет сменную мембрану и Вы планируете купить точно такую же модель, то при наличии давления в воздушной камере, есть смысл демонтировать мембрану и прижимной фланец, оставив их на запчасти, а утилизировать только поврежденный корпус.
- Используйте консоли BKSS для того, чтобы полностью исключить влияние на соединения трубопроводов при обслуживании баков, а так же засорение питьевой воды ржавчиной.
- Подключайте расширительные баки правильно, см. узлы:
- Схема подключения бойлера косвенного нагрева H-WH-01 ;
- Обвязка расширительного бака для отопления дома до 250 м²
Дополнительная информация о расширительных баках
Вопросы-ответы GIDRUSS:
- Как подобрать объем расширительного бака для бойлера?
- Как правильно установить группу безопасности и расширительный бак при обвязке бойлера косвенного нагрева?
- Группа безопасности бойлера на 8 бар: как собрать самостоятельно?
Интерактивные статьи с возможностью оформить ТЗ и выбрать мастера:
- Покупаем консоль группы безопасности BKSS-35.BASIS
- Покупаем надежный 8-ми барный предохранительный клапан проверенного бренда:
- для бойлера до 200 л включительно подойдет клапан 1/2 дюйма:
- SVS-0003-008015 от STOUT
- RVS-0003-008015" от ROMMER
- FA 2004 121280" от FAR
- для бойлера на 300-400 л подойдет клапан 3/4 дюйма
- SVS-0003-008020 от STOUT
- RVS-0003-008020 от ROMMER
- для бойлера до 200 л включительно подойдет клапан 1/2 дюйма:
- Покупаем остальные комплектующие (воздухоотводчик, шаровые краны)
- Собираем ГБ на любой уплотнительный материал!
Данная конструкция заменит большинство аналогичных групп безопасности, которые ставятся на вводе в бойлер и не удобны для обслуживания, а так же не решают проблему монтажа расширительного бака, такие как: ME 6925B.80PE, 6915B.80PE.
Дополнительная информация
- Как подобрать объем расширительного бака для бойлера?
- Интерактивная статья с возможностью создать ТЗ на проектирование:
Бойлер косвенного нагрева: как выбрать и где купить?
C учетом стандартных типоразмеров РБ, это будет выглядеть так:
- для 100 литрового БКН подойдет РБ на 12 л
- для 150 литрового БКН подойдет РБ на 18 л
- для 200 литрового БКН подойдет РБ на 24 л
- для 300 литрового БКН подойдет РБ на 35 л
Особенности монтажа РБ для БКН 300 л и более
В связи с относительно большим объемом и габаритами расширительного бака на 35 л для его монтажа на стену можно использовать консоль BKSS-35.BASIS , оснастив её предохранительным клапаном 3/4" на нужное Вам давление, манометром и воздухоотводчиком или купить полнокомплектную группу безопасности BKSS-35-20-6 с предохранительным клапаном 3/4" на давление 6 бар .Дополнительная информация о расширительных баках
Шаг. 1. Разметка и сверление монтажных отверстий.
1.1. Разметьте на стене ось вертикального подключение магистрали.
1.2. Прикрутите к консоли насухо пустой расширительный бак и воздухоотоводчик и прикиньте удобное расположение в котельной, отметив места сверления отверстий по основанию консоли.
1.3. Если у Вас возникли сложности в разметке - закажите в Gidruss бесплатную компоновку котельной .
Шаг. 2. Сборка ГБ до монтажа консоли на стену на выбранный герметизирующий материал.
2.1. Осевой манометр устанавливается на фасадное подключении ½″ через футорку ½″ - ¼″.
2.2. Предохранительный клапан устанавливается в боковое подключение с направлением сброса аварийного потока вниз, если используется клапан размером ½″, то он ставится через футорку из комплекта поставки.
2.3. Воздухоотводчик устанавливается через футорку ¾″ - ½″ в свободное верхнее подключение ¾″.
2.4. Установка разъемного соединения для возможности сервисного демонтажа консоли целиком. Запрещается монтаж на фитинг с наглухо завинченной резьбой с последующей запрессовкой или пайкой!
2.6. Ставить или нет отсечной кран - решать только Вам, так как с одной стороны: без него очень неудобно обслуживать систему, так как придется сливать много теплоносителя, но с другой стороны его установка это нарушение пункт 10.2.3 СП 89.13330.2012, но есть еще один компромиссный вариант для сервисников - поставить и снять ручку с крана. Если Вы все же решились установить отсечной кран, то можете выбрать его комплектацию ¾″ с полусгоном и тогда можно пропустить п.2.4.
Шаг. 3. Монтаж консоли на стену.
Шаг. 4. Установка прочих элементов обвязки:
4.1. Расширительный бак (не входит в комплект поставки) и крепится через штуцер Rp ¾″ в любом положении сверху или снизу.
4.2. Если расширительный бак установлен в верхнем положении, то в подключение напротив рекомендуем установить дренажный кран.
Дополнительная информация о расширительных баках
Вопросы-ответы GIDRUSS:
- Как подобрать объем расширительного бака для бойлера?
- Как правильно обслуживать расширительный бак?
- Группа безопасности бойлера на 8 бар: как собрать самостоятельно?
Интерактивные статьи с возможностью оформить ТЗ и выбрать мастера:
Потому что проходного сечения клапана может быть недостаточно для залпового выброса избыточно нагретой воды, особенно в случае выхода из строй расширительного бака, что сопряжено с разрывом бойлера.
Рекомендуем заказывать группу безопасности BKSS-35-20-6 с предохранительным клапаном 3/4" .
