


MK-1000-2x50
Модульный коллектор
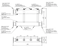
до 1 мВт, 2 магистр. подкл. Фл.Ду100, 2 контура G 2″ вверх или внизАртикул:2P 10001 17
Основные характеристики
Материал исполнения:Конструкционная сталь
Количество контуров:
2
Магистральное присоединение:Фланец Ду-100
Мощность максимальная, кВт:
1000
Максимальная подача, м³/ч:
43
Логистические параметры
Масса брутто, кг:81
Размеры упаковки, (Д x Ш х В), мм:1120 x 750 x 260
Объем упаковки, м³:0.2184
Описание
Модульный коллектор MK-1000-2x50 предназначен для распределения теплоносителя по контурам или его сбора в каскад для вывода на гидравлический разделитель GR-1000-100 .
Все характеристики
Основные характеристики
Материал исполнения:
Конструкционная сталь
Количество контуров:
2
Максимальная подача, м³/ч:
43
Мощность максимальная, кВт:
1000
Максимальная отапливаемая площадь, м²:
10000
Магистральное присоединение:
Фланец Ду-100
Подключения потребителей:
G 2″ (НР)
Доп. присоединение:
G 1″ (НР)
Межосевое расстояние, мм:
250/450
Логистические параметры
Размеры упаковки, (Д x Ш х В), мм:
260 x 1120 x 750
Объем упаковки, м³:
0.2184
Длина, мм:
1120
Ширина, мм:
750
Высота, мм:
260
Все преимущества

Соосная компоновка изделий упростит разметку и ускорит монтаж!
- Удобный процесс разметки с помощью лазера!
- Быстрый монтаж!
- Экономия пространства котельной!

Классические фланцевые соединения по ГОСТ 33259 (бывший ГОСТ 12820) универсально и надежно!
- Совместимость с устаревшим ГОСТ 12820-80 с обозначениями "1-...-10" для 10 бар и "1-...-16" для 16 бар.
- Универсальная X-образная ориентация отверстий фланца.
- Все фланцевые изделия (GR, MK) подходят друг к другу не зависимо от даты производства!

Конструкционная сталь 09Г2С это стабильность изделия при колебаниях температуры + 7 лет гарантии!!
- Широкий температурный диапазон применения от -70 до 475˚С с сохранением характеристик прочности, пластичности и химостойкости
- Высокая коррозионная стойкость стали 09Г2С по сравнению с обычно сталью 3 (дешевая профильная труба) и сталью 20 (шовная ВГП-труба) существенно продлит срок службы изделий.
- Низкий показатель отпускной хрупкости позволит получить после сварки абсолютно однородное изделие, более устойчивое к рабочим и аварийным колебаниям температуры и давления
- Содержание марганца и кремния в 09Г2С способствуют удалению кислорода из металла
P.S. Как отличить изделие из 09Г2С от обычных разнородных металлов ст. 3 и ст. 20?
- По наличию шва на внутренней стороне резьбового патрубка: если виден или прощупывается шов значит перед Вами некачественное изделие.
- Повышенная толщина корпуса в 3 мм и больший радиус изгиба профиля т.к. 09Г2С гнется сложнее чем Ст.20 или Ст.3, т.е. если перед Вами изделие с острой кромкой изгиба профильной трубы это не 09Г2С.
- Сравнение с продукцией GIDRUSS сходной модели на вес - если изделие конкурента намного легче, это значит, что толщина стенки профильной трубы менее 2 мм и оно точно не из 09Г2С!

Презентабельные 3D-опоры с предварительной регулировкой положения до монтажа изделия
- Точная регулировка вертикального положения и высоты коллектора без самого коллектора!
- Коллектор устанавливается уже на полностью отрегулированный ложемент!
- Презентабельный внешний вид.
- Возможность дополнительного крепления к полу с момощью шпилек М10 и забиваемых резьбовых анкеров.

Боковой контур повышенной производительности
- Позволяет подключать мощные потребители, такие как теплообменники для подогрева бассейнов и вентиляции.
- Возможность гармоничного расширения системы при добавлении отопительных контуров с помощью дополнительных секций модульных коллекторов MKSS.

Презентабельная износостойкая окраска "черный муар с серебром"!
Порошковая окраска "Муар Металлик" стойко переносит любые механические повреждения.
На изделиях GIDRUSS не остается марких следов даже в случае неаккуратного монтажа!
Подробнее На изделиях GIDRUSS не остается марких следов даже в случае неаккуратного монтажа!
Документация
Скачать всю документацию
Готовые объекты
Наличие у дилеров 1
Организовать поставку через другого дилера

Купить из наличия в Самаре
г. Саратов, ул. Усть-Курдюмская, 1
Позвонить в офис
+7 (***) ***-**-**
Наличие: 1 шт.

пн-пт: 08:00-18:00
Купить по договору с ООО "Лунда" (с НДС) по коду м8526 (под заказ)
Для проверки наличия - выбирайте Ваш город на сайте lunda.ru
Позвонить в офис
+7 (***) ***-**-**

пн-пт 09:00-19:00 сб 10:00-17:00
Заказать в ЭТМ через iPro с отсрочкой платежа и бесплатной доставкой по г. Псков, Великие Луки и др. городах Псковской области
г. Псков, пр. Рижский, 94 В
Позвонить в офис
+7 (***) ***-**-**

пн-пт: 08:00-18:00
Заказать в г. Ростов-на-Дону с бесплатной доставкой по Ростовской области у Лунды
г. Ростов-на-Дону, 1-й км а/д 60К-9, 7/10
Позвонить менеджеру
+7 (***) ***-**-**
Позвонить в офис
+7 (***) ***-**-**

пн-пт: 08:00-18:00
Заказать у Лунды с бесплатной доставкой в г. Петрозаводск, ул. Муезерская, 15 А
г. Петрозаводск, ул. Муезерская, 15 А
Позвонить в офис
+7 (***) ***-**-**

пн-пт: 08:00-18:00
Заказать у Лунды с бесплатной доставкой в
г. Нижний Новгород, ул. Кащенко, 4Б
Позвонить в офис
+7 (***) ***-**-**

пн-пт: 08:00-18:00
Заказать у Лунды с бесплатной доставкой в г. Тула
г. Тула, ул. Рязанская, 46
Позвонить в офис
+7 (***) ***-**-**

пн-пт: 08:00-18:00
Заказать у Лунды с бесплатной доставкой в г. Брянск
г. Брянск, ул. Литейная, 3
Позвонить в офис
+7 (***) ***-**-**

пн-пт: 08:00-18:00
Заказать у Лунды с бесплатной доставкой в г. Сочи
г. Сочи, ул. Водораздельная, 5 С1
Позвонить в офис
+7 (***) ***-**-**

пн-пт: 08:00-18:00
Заказать у Лунды с бесплатной доставкой в г. Краснодар
г. Краснодар, ул. Лизы Чайкиной, 15 С3
Позвонить в офис
+7 (***) ***-**-**

пн-пт: 08:00-18:00
Заказать у Лунды с бесплатной доставкой в г. Великий Новгород
г. Великий Новгород, ул. Большая Санкт-Петербургская, 82А
Позвонить в офис
+7 (***) ***-**-**

пн-пт: 08:00-18:00
Заказать у Лунды с бесплатной доставкой в г. Новороссийск
г. Новороссийск, Приморский р-н, с. Цемдолина, ул. Ленина, 6В
Позвонить в офис
+7 (***) ***-**-**

пн-пт: 08:00-18:00 сб 09:00-15:00
Заказать у Лунды с бесплатной доставкой по Казани и Татарстану
г. Казань, ул. Оренбургский тракт, 160 К2
Позвонить менеджеру
+7 (***) ***-**-**
Позвонить в офис
+7 (***) ***-**-**

пн-пт: 08:00-18:00
Заказать у Лунды с бесплатной доставкой в г. Набережные Челны
г. Набережные Челны, ул. Старосармановская, 29 А
Позвонить в офис
+7 (***) ***-**-**

пн-пт: 08:00-18:00
Заказать у Лунды с бесплатной доставкой в г. Чебоксары
г. Чебоксары, проезд Машиностроителей, 1 Ч, оф. бокс 10
Позвонить в офис
+7 (***) ***-**-**

пн-пт: 08:00-18:00
Заказать у Лунды с бесплатной доставкой в г. Рязань
г. Рязань, проезд Яблочкова, 6 С1
Позвонить в офис
+7 (***) ***-**-**

пн-пт: 08:00-18:00
Заказать у Лунды с бесплатной доставкой в г. Липецк
г. Липецк, ул. Гагарина, 69
Позвонить в офис
+7 (***) ***-**-**

пн-пт: 08:00-18:00
Заказать у Лунды с бесплатной доставкой в г. Белгород
г. Белгород, ул. Корочанская, 132 Д
Позвонить в офис
+7 (***) ***-**-**

пн-пт: 08:00-18:00
Заказать у Лунды с бесплатной доставкой в г. Волгоград
г. Волгоград, ул. Качинцев, 82 Б
Позвонить в офис
+7 (***) ***-**-**

пн-пт: 08:00-18:00
Заказать у Лунды с бесплатной доставкой в г. Пенза
г. Пенза, ул. Светлая, 50 Б
Позвонить в офис
+7 (***) ***-**-**

пн-пт: 08:00-18:00
Заказать у Лунды с бесплатной доставкой в г. Саранск
г. Саранск, ул. Строительная, 32 В
Позвонить в офис
+7 (***) ***-**-**

пн-пт: 08:00-18:00
Заказать у Лунды с бесплатной доставкой в г. Саратов
г. Саратов, ул. С.Ф.Тархова, 27 А
Позвонить в офис
+7 (***) ***-**-**

пн-пт: 08:00-18:00
Заказать у Лунды с бесплатной доставкой в г. Орёл
г. Орёл, ул. Цветаева, 1М
Позвонить в офис
+7 (***) ***-**-**

пн-пт: 08:00-18:00
Заказать у Лунды с бесплатной доставкой в г. Смоленск
г. Смоленск, пр. Трамвайный, 6 А
Позвонить в офис
+7 (***) ***-**-**

пн-пт: 08:00-18:00
Заказать у Лунды с бесплатной доставкой в г. Сочи (Адлер)
г. Адлер, ул. Энергетиков, 7 Б
Позвонить в офис
+7 (***) ***-**-**

пн-пт: 08:00-18:00
Заказать у Лунды с бесплатной доставкой в г. Сестрорецк
г. Сестрорецк, Приморское шоссе, 260 А
Позвонить в офис
+7 (***) ***-**-**

пн-пт: 08:00-18:00
Заказать у Лунды с бесплатной доставкой в г. Уфа
г. Уфа, ул. Баязита Бикбая, 2/2
Позвонить в офис
+7 (***) ***-**-**

пн-пт 09:00-18:00
Заказать у Лунды с бесплатной доставкой в г. Челябинск, ул. Каслинская, 5
г. Челябинск, ул. Каслинская, 5
Позвонить в офис
+7 (***) ***-**-**

пн-пт: 08:00-18:00
Заказать у Лунды с бесплатной доставкой в г. Калуга, ул. Болдина, 77 К2
г. Калуга, ул. Болдина, 77 К2
Позвонить в офис
+7 (***) ***-**-**

пн-пт: 08:00-18:00
Заказать у Лунды с бесплатной доставкой в г. Воронеж, ул. Планетная, 26
г. Воронеж, ул. Планетная, 26
Позвонить в офис
+7 (***) ***-**-**

Заказать у Лунды с бесплатной доставкой в г. Вологда
г. Вологда (хоум офис)
Позвонить в офис
+7 (***) ***-**-**

пн-пт: 08:00-18:00
Заказать у Лунды с бесплатной доставкой в г. Обнинск
г. Обнинск, ул. Циолковского, 8
Позвонить в офис
+7 (***) ***-**-**

пн-пт 08:00-17:30
Заказать в ЭТМ - iPro с отсрочкой платежа и бесплатной доставкой в г. Санкт-Петербург (СПб) и Ленинградской области
г. Санкт-Петербург, ул. Заозерная, д.14В
Позвонить менеджеру
+7 (***) ***-**-**
Позвонить в офис
+7 (***) ***-**-**

пн-пт 08:00-17:30
Заказать в ЭТМ через iPro с отсрочкой платежа и бесплатной доставкой по г. Благовещенск
г. Благовещенск, Серышевский переулок, 5
Позвонить в офис
+7 (***) ***-**-**

пн-пт 09:00-18:00
Заказать через iPro с бесплатной доставкой до г. Владивосток в течении 10 раб. дней под договору с ЭТМ
г. Владивосток, ул. Заречная, 35
Позвонить в офис
+7 (***) ***-**-**

пн-пт 08:30-18:30
Заказать в ЭТМ через iPro с отсрочкой платежа и бесплатной доставкой по г. Воронеж
г. Воронеж, пр.Труда, 111
Позвонить в офис
+7 (***) ***-**-**

пн-пт 09:00-19:00
Заказать в ЭТМ через iPro с отсрочкой платежа по г. Екатеринбург, Арамиль, Верхняя Пышма (доставка =190 р.)
г. Екатеринбург, пер.Базовый, 47 (и еще 6 филиалов)
Позвонить менеджеру
+7 (***) ***-**-**
Позвонить в офис
+7 (***) ***-**-**

пн-пт 09:00-19:00
Заказать в ЭТМ через iPro с отсрочкой платежа и бесплатной доставкой по г. Жуковский
г. Жуковский, ул. Гагарина, 85
Позвонить в офис
+7 (***) ***-**-**

пн-пт 09:00-19:00
Заказать в ЭТМ через iPro с отсрочкой платежа и бесплатной доставкой по г. Иркутск
г. Иркутск, ул. Старокузьмихинская, 71
Позвонить в офис
+7 (***) ***-**-**

пн-пт 09:00-19:00 сб 09:00-16:00
Заказать в ЭТМ через iPro с отсрочкой платежа и бесплатной доставкой по г. Казань (Татарстан)
5 филиалов в г. Казань: [1] ул.Бухарская, 89 [2] ул.Сибирский Тракт, 34Л [3] пр.Ямашева, 95 [4] ул.Краснококшайская, 119 [5] пос. Новониколаевский, промплощадка №1, 1/1
Позвонить в офис
+7 (***) ***-**-**

пн-пт 09:00-18:00 cб 09:00-16:00
Заказать в ЭТМ через iPro с отсрочкой платежа и бесплатной доставкой по г. Курган
г. Курган, ул. Омская, 131 С1
Позвонить в офис
+7 (***) ***-**-**

пн-пт 09:00-19:00
Заказать в ЭТМ через iPro с отсрочкой платежа и бесплатной доставкой по г. Малоярославец, Обнинск (Калужская область)
Калужская обл., Малоярославский р-н, с. Маклино, Промзона Меньшовка-1
Позвонить в офис
+7 (***) ***-**-**

пн-пт 09:00-19:00
Заказать в ЭТМ через iPro с отсрочкой платежа и бесплатной доставкой по г. Новосибирск
5 офисов продаж по Новосибирску: [1] Пашинское шоссе, 1 К1 [2] ул. Оловозаводская, 20 К1 [3] ул. Семьи Шамшиных, 64 [4] ул. Зыряновская, 61 [5] ул. Титова, 9
Позвонить в офис
+7 (***) ***-**-**

пн-пт 08:00-18:00
Заказать в ЭТМ через iPro с отсрочкой платежа и бесплатной доставкой по г. Пенза
2 филиалов в г.Пенза: [1] ул. Аустрина, 63 К5 [2] пр. Победы, 33
Позвонить в офис
+7 (***) ***-**-**

пн-пт 09:00-19:00
Заказать в ЭТМ через iPro с отсрочкой платежа и бесплатной доставкой по г. Самара
4 филиала в г. Самара: [1] Самарcкая обл., Стройкерамика пгт., Пожарный проезд, д.1 [2] ул. Гаражная, 5 [3] ул. Главная, 23 [4] ул. Московское шоссе, 306
Позвонить в офис
+7 (***) ***-**-**

пн-пт 09:00-19:00
Заказать в ЭТМ через iPro с отсрочкой платежа и бесплатной доставкой по г. Сургут, Новый Уренгой, Нижневартовск
г. Сургут, ул. Комплектовочная, 5
Позвонить в офис
+7 (***) ***-**-**

пн-пт 09:00-18:00
Заказать в ЭТМ через iPro с отсрочкой платежа и бесплатной доставкой по г. Сыктывкар, Ухта, Воркута, Печора, Усинск, Сосногорск
г. Сыктывкар, ул. Пушкина, 63
Позвонить в офис
+7 (***) ***-**-**

пн-пт 09:00-19:00
Заказать в ЭТМ через iPro с отсрочкой платежа и бесплатной доставкой по г. Хабаровск
г. Хабаровск, ул. Краснодарская, 102Б
Позвонить в офис
+7 (***) ***-**-**

пн-пт 09:00-19:00
Заказать в ЭТМ через iPro с отсрочкой платежа и доставкой по г. Ярославль, Рыбинск, Тутаев, Переславль-Залесский
г. Ярославль, пр. Октября, 89/1
Позвонить в офис
+7 (***) ***-**-**

пн-пт 09:00-18:00 сб 09:00-15:00
Заказать в ЭТМ через iPro с отсрочкой платежа и бесплатной доставкой по г. Красноярск
г. Красноярск, ул. Дудинская, 16 С3
Позвонить в офис
+7 (***) ***-**-**

пн-пт 09:00-18:00 сб.09:00-16:00
Заказать в ЭТМ через iPro и бесплатной доставкой до г. Стерлитамак, Ишимбай, Салават, Мелеуз, Кумертау
г. Стерлитамак, ул. Вокзальная, 9А, лит. Е
Позвонить в офис
+7 (***) ***-**-**

пн-пт 09:00-19:00
Заказать в ЭТМ через iPro с бесплатной доставкой до г. Москва, ул. Мнёвники, 10К1
6 филиалов в г. Москва + 6 за МКАД
Позвонить в офис
+7 (***) ***-**-**

пн-пт 09:00-19:30 сб 09:00-16:00
Заказать в ЭТМ через iPro с отсрочкой платежа и бесплатной доставкой по г. Химки
г. Химки, пр. Мельникова, 32А
Позвонить в офис
+7 (***) ***-**-**

пн-пт 09:00-18:00 сб 09:00-17:00
Заказать в ЭТМ через iPro с отсрочкой платежа и бесплатной доставкой по г. Омск
г. Омск, пр. Мира, 71/3
Позвонить в офис
+7 (***) ***-**-**

пн-пт 06:00-23:59
Заказать в ЭТМ через iPro с отсрочкой платежа и бесплатной доставкой по г. Самара
г. Санкт-Петербург, п. Шушары, Ленсоветовская дорога, 12 К2 литера Б
Позвонить в офис
+7 (***) ***-**-**

пн-пт 09:00-19:00 сб 10:00-16:00
Заказать в ЭТМ через iPro с отсрочкой платежа по г. Пермь
г. Пермь, ул. Героев Хасана, 100 (и еще 4 филиала)
Позвонить в офис
+7 (***) ***-**-**

пн-пт 08:30-17:30 сб 08:30-15:30
Заказать в ЭТМ через iPro с отсрочкой платежа и бесплатной доставкой по г. Ставрополь
г. Ставрополь, ул. Доваторцев, 60
Позвонить менеджеру
+7 (***) ***-**-**
Позвонить в офис
+7 (***) ***-**-**

пн-пт 09:00-19:00 сб 09:00-16:00
Заказать в ЭТМ через iPro с отсрочкой платежа и бесплатной доставкой по г. Ростов-на-Дону
г. Ростов-на-Дону, ул. Вересаева, 103В, 1 секция
Позвонить менеджеру
+7 (***) ***-**-**
Позвонить в офис
+7 (***) ***-**-**

пн-пт: 08:00-18:00
Заказать с бесплатной доставкой до Варшавского шоссе г. Москва - Северное Бутово
г. Москва, ул. Старобитцевская, 5 С2, офис 3
Позвонить в офис
+7 (***) ***-**-**

пн-пт: 08:00-18:00
Заказать с бесплатной доставкой до Каширского шоссе г. Москва
г. Москва, ул. Котляковская, 5
Позвонить в офис
+7 (***) ***-**-**

пн-пт: 08:00-18:00 +7 (495) 661-60-60
Заказать с бесплатной доставкой до Юоровского шоссе г. Москва (м. Озерная), Солнцево, Новопеределкино
г. Москва, ул. Наташи Ковшовой, 14 С2
Позвонить в офис
+7 (***) ***-**-**

пн-пт: 08:00-18:00
Заказать с бесплатной доставкой до Ленинградского шоссе г. Москва - Химки
г. Москва, ул. Правобережная, 1 Б
Позвонить в офис
+7 (***) ***-**-**

пн-пт: 08:00-18:00
Заказать с бесплатной доставкой до Рязанского проспекта г. Москва
г. Москва, проезд Сормовский, 11/7
Позвонить в офис
+7 (***) ***-**-**

пн-пт: 08:00-18:00
Заказать с бесплатной доставкой до Киевского шоссе г. Москва, Обнинск, Белоусово
г. Обнинск, ул. Циолковского, 8
Позвонить в офис
+7 (***) ***-**-**

пн-пт: 08:00-18:00
Заказать с бесплатной доставкой до Дмитровского шоссе г. Москва Догопрудный, Шереметьево, Грибки
д. Грибки, ул. Адмиральская, 4с1
Позвонить в офис
+7 (***) ***-**-**

пн-пт: 08:00-18:00
Заказать с бесплатной доставкой до Можайского шоссе г. Москва, Большие и Малые Вязёмы, Краснознаменск
д. Малые Вязёмы, Петровский проезд, 2с2
Позвонить в офис
+7 (***) ***-**-**

пн-пт: 08:00-18:00
Заказать с бесплатной доставкой до на Волоколамского шоссе г. Москва р-н Тушино
г. Москва, ул. Вишнёвая, 9к1
Позвонить в офис
+7 (***) ***-**-**












