
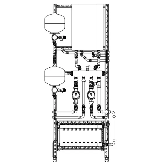
Обвязка котла De Dietrich Naneo - TU-TGR40-DD-01
Основные характеристики
Краткое описание
Типовой узел TU-TGR40-DD-01 предназначен для разработки с помощью GIDRUSS, комплектов поставки дилером, инженерным центром или строительной компанией для быстрой комплектации и монтажа котельной с газовым котлом De Dietrich Naneo для дома до 250 м² с отоплением на 2-5 потребителей, используя доступные Вам бренды оборудования.
Результатом будет быстро смонтированная котельная для удовлетворения любых предпочтений заказчика, которая подойдет в 90% случаев даже тем, кто еще не думал об отоплении!
Где можно купить комплект обвязки котельной на базе котла De Dietrich Naneo ?
- Lunda.ru...

☝Рекомендация производителя
Не использовать насосные гайки из комплекта поставки насоса, так как это чревато тем, что через несколько лет их невозможно будет открутить, а так же весьма вероятны протечки возникшие между слоем краски и стальным корпусом гайки!
- существенно снижает сопротивление на "большом круге" (контур циркуляции после смесителя), что обеспечивает большую площадь отапливаемых полов
- перекрывает поток теплоносителя при выключенном насосе, что на 100% исключает паразитный поток по неработающему контуру

- Появляется возможность осуществить промывку контура без дополнительных временных врезок в систему отопления: перекрываем К1, К2; разбираем ремонтный участок; промываем контур через краны К3, К4.
- Удобно производить полный слив теплоносителя для консервации объекта и прочих сервисных задач.

- Диаметр шкалы 63 мм
- Точность показаний 1%
Артикул для заказа: BV-25TUN-25

- Точность показаний намного выше, чем у мелких термометров, встроенных в ручки кранов.
- Диаметр 63 мм позволяет с одного взгляда считывать температуру
Для чего нужна гидрострелка?
Зачем ставить гидравлический разделитель?
- Гидрострелка продлевает жизнь самой дорогой детали котла - теплообменника так как циркуляция теплоносителя по котловому контуру всегда стабильна даже при сильном засорении грязевого фильтра, особенно в схемах, когда грязевой фильтр стоит после гидрострелки (см. пример на схеме обвязки 2 котлов ).
- Циркуляционный насос котла проработает с гидрострелкой намного дольше так как циркуляция котловой воды не зависит от перекрытия термоголовок радиаторов в межсезонье.
- Система будет работать стабильно на всем сроке эксплуатации, так как насосы отдельных контуров подбираются и настраиваются не зависимо друг от друга и сохраняют параметры даже при сильном засорении отдельных элементов системы
Когда есть смысл применить кольцевой коллектор?
Если кратко - это целесообразно на объекте до 250 м² при наличии 2-3 контуров с убыванием температуры, например подключив их в такой последовательности: БКН, радиаторы, теплый пол.
Для принятия же основательного решения советуем ознакомиться с дополнительными материалами:
- Таблица выбора схемы отопления для частного дома
- Интерактивная статья с возможностью оформления ТЗ на проектирование отопления в процессе прочтения: Схема отопления для дома до 200 м²: разбор 4 вариантов
- Котел потребляет много газа.
- Не равномерно греются радиаторы.
- Нагрев теплых полов влияете на нагрев радиаторов и наоборот.
- Насос не продавливает систему отопления.
- Часто ломается котел.
☝ Узнайте: Как правильно подобрать гидрострелку!
Сэкономьте свое время и отправьте 📑 запрос на бесплатный подбор гидрострелки и прочего оборудования котельной.
Термогидравлический разделитель серий TGR, TGRSS можно устанавливать в горизонтальном положении, только нужно учесть, что при этом не будет работать функция отведения воздуха и шлама, поэтому нужно будет поставить деаэратор воздуха и фильтр механической очистки и/или дешламатор.
Последовательность действий по замене подачи и обратки:
- Отсоедините смесительный узел.
- Поверните его на 180 градусов по горизонтальной оси направленной от стены.
- Измените положение штока смесителя согласно паспорту производителя смесителя и сервопривода.
- Установите смесительный узел обратно.
.Дополнительная информация о расширительных баках
- Как правильно подобрать насосную группу!
- Сэкономьте свое время и отправьте 📑 запрос на бесплатный подбор насосных групп и прочего оборудования котельной.
Шаг. 1. Разметка и сверление монтажных отверстий.
1.1. Разметьте на стене ось вертикального подключение магистрали.
1.2. Прикрутите к консоли насухо пустой расширительный бак и воздухоотоводчик и прикиньте удобное расположение в котельной, отметив места сверления отверстий по основанию консоли.
1.3. Если у Вас возникли сложности в разметке - закажите в Gidruss бесплатную компоновку котельной .
Шаг. 2. Сборка ГБ до монтажа консоли на стену на выбранный герметизирующий материал.
2.1. Осевой манометр устанавливается на фасадное подключении ½″ через футорку ½″ - ¼″.
2.2. Предохранительный клапан устанавливается в боковое подключение с направлением сброса аварийного потока вниз, если используется клапан размером ½″, то он ставится через футорку из комплекта поставки.
2.3. Воздухоотводчик устанавливается через футорку ¾″ - ½″ в свободное верхнее подключение ¾″.
2.4. Установка разъемного соединения для возможности сервисного демонтажа консоли целиком. Запрещается монтаж на фитинг с наглухо завинченной резьбой с последующей запрессовкой или пайкой!
2.6. Ставить или нет отсечной кран - решать только Вам, так как с одной стороны: без него очень неудобно обслуживать систему, так как придется сливать много теплоносителя, но с другой стороны его установка это нарушение пункт 10.2.3 СП 89.13330.2012, но есть еще один компромиссный вариант для сервисников - поставить и снять ручку с крана. Если Вы все же решились установить отсечной кран, то можете выбрать его комплектацию ¾″ с полусгоном и тогда можно пропустить п.2.4.
Шаг. 3. Монтаж консоли на стену.
Шаг. 4. Установка прочих элементов обвязки:
4.1. Расширительный бак (не входит в комплект поставки) и крепится через штуцер Rp ¾″ в любом положении сверху или снизу.
4.2. Если расширительный бак установлен в верхнем положении, то в подключение напротив рекомендуем установить дренажный кран.
Дополнительная информация о расширительных баках
Вопросы-ответы GIDRUSS:
- Как подобрать объем расширительного бака для бойлера?
- Как правильно обслуживать расширительный бак?
- Группа безопасности бойлера на 8 бар: как собрать самостоятельно?
Интерактивные статьи с возможностью оформить ТЗ и выбрать мастера:
✅ Последовательность действий по обслуживанию бака
Шаг 1. Если у Вас один бак в системе, тогда нужно остановить котел.
Шаг 2. Перекройте кран между баком и системой, если он у Вас есть.
Шаг 3. С помощью дренажного крана спустите давление. Если у Вас нет дренажного крана - придется отсоединить бак от системы, предварительно подставив емкость сопоставимого с баком объемом.
Шаг 4. Подкачайте бак с помощью компрессора до требуемого давления. Для обычного частного дома высотой не более 10 м - это 1.5 бара, что соответствует заводскому значению новых баков. Общее правило такое: давление воздуха в полости бака должно быть меньше рабочего на 0.3 бара. Если РБ не держит давление - замените его мембрану или бак целиком.
Шаг 5. Установите бак на место и откройте все краны.
⚠ Какие риски возможны?
- Будьте осторожны, если Вам придется демонтировать бак для слива воды - Вы можете повредить трубопроводы!
- При скручивании резьбы, если она пристыла - можно свернуть фитинг и разгерметизировать систему!
- Регулярно проверяйте не перегибает ли нагрузка от бака с теплоносителем трубопроводы!
☝ Рекомендации специалистов
- Не забывайте проверять расширительный бак хотя бы раз в год. Если отсутствует давление в воздушной камере или в процессе работы котла меняется рабочее давление или, что еще хуже, срабатывает предохранительный клапан — срочно проведите внеплановое обслуживание расширительного бака.
- Если наблюдается внешняя утечка расширительного бака — необходимо его срочно заменить. Если дефектный бак имеет сменную мембрану и Вы планируете купить точно такую же модель, то при наличии давления в воздушной камере, есть смысл демонтировать мембрану и прижимной фланец, оставив их на запчасти, а утилизировать только поврежденный корпус.
- Используйте консоли BKSS для того, чтобы полностью исключить влияние на соединения трубопроводов при обслуживании баков, а так же засорение питьевой воды ржавчиной.
- Подключайте расширительные баки правильно, см. узлы:
- Схема подключения бойлера косвенного нагрева H-WH-01 ;
- Обвязка расширительного бака для отопления дома до 250 м²
Дополнительная информация о расширительных баках
Вопросы-ответы GIDRUSS:
- Как подобрать объем расширительного бака для бойлера?
- Как правильно установить группу безопасности и расширительный бак при обвязке бойлера косвенного нагрева?
- Группа безопасности бойлера на 8 бар: как собрать самостоятельно?
Интерактивные статьи с возможностью оформить ТЗ и выбрать мастера:
Потому что проходного сечения клапана может быть недостаточно для залпового выброса избыточно нагретой воды, особенно в случае выхода из строй расширительного бака, что сопряжено с разрывом бойлера.
Рекомендуем заказывать группу безопасности BKSS-35-20-6 с предохранительным клапаном 3/4" .Дополнительная информация
Как подобрать объем расширительного бака для бойлера?Для того, чтобы принять правильное решения о выборе котла со встроенным или внешним насосом определите что для Вас важнее:
- Так как циркуляционный насос - это, по сути расходник - оцените стоимость замены насоса, включающей цену оригинальной/аналогичной запчасти, стоимость работ по замене как запасной части
- Оцените компактность решения изучив готовые комплекты обвязки котлов , ведь часто внешний насос просто некуда поставить.
- Рекомендуем убедиться, что производительности встроенного насоса хватит для работы всей системы. Во избежание ошибок в гидравлике вы можете доверить подбор оборудования экспертам Gidruss. Оставьте 📋 заявку на подбор оборудования котельной , и мы бесплатно предложим оптимальное техническое решение».
Подробнее о процессе выбора котла можно прочитать в интерактивной статье с возможостью составить ТЗ на проектирование и монтаж:
🎓 Как выбрать котел для частного дома: пошаговое и подробное руководство
- Покупаем консоль группы безопасности BKSS-35.BASIS
- Покупаем надежный 8-ми барный предохранительный клапан проверенного бренда:
- для бойлера до 200 л включительно подойдет клапан 1/2 дюйма:
- SVS-0003-008015 от STOUT
- RVS-0003-008015" от ROMMER
- FA 2004 121280" от FAR
- для бойлера на 300-400 л подойдет клапан 3/4 дюйма
- SVS-0003-008020 от STOUT
- RVS-0003-008020 от ROMMER
- для бойлера до 200 л включительно подойдет клапан 1/2 дюйма:
- Покупаем остальные комплектующие (воздухоотводчик, шаровые краны)
- Собираем ГБ на любой уплотнительный материал!
Данная конструкция заменит большинство аналогичных групп безопасности, которые ставятся на вводе в бойлер и не удобны для обслуживания, а так же не решают проблему монтажа расширительного бака, такие как: ME 6925B.80PE, 6915B.80PE.
Дополнительная информация
- Как подобрать объем расширительного бака для бойлера?
- Интерактивная статья с возможностью создать ТЗ на проектирование:
Бойлер косвенного нагрева: как выбрать и где купить?
C учетом стандартных типоразмеров РБ, это будет выглядеть так:
- для 100 литрового БКН подойдет РБ на 12 л
- для 150 литрового БКН подойдет РБ на 18 л
- для 200 литрового БКН подойдет РБ на 24 л
- для 300 литрового БКН подойдет РБ на 35 л
Особенности монтажа РБ для БКН 300 л и более
В связи с относительно большим объемом и габаритами расширительного бака на 35 л для его монтажа на стену можно использовать консоль BKSS-35.BASIS , оснастив её предохранительным клапаном 3/4" на нужное Вам давление, манометром и воздухоотводчиком или купить полнокомплектную группу безопасности BKSS-35-20-6 с предохранительным клапаном 3/4" на давление 6 бар .Дополнительная информация о расширительных баках
- Устанавливайте на все гидравлические подключения котла разъемные соединения за которыми сразу отсечные краны, это позволит производить удобное отключение котла для его ремонта или замены со сливом минимального количества теплоносителя. Если в конфигурации котла нет дренажного крана, то выберите самый нихний патрубок для слива и поставьте между разъемным подключением и отсечным краном тройник с дренажным краном
- Для оперативного контроля процесса работы котла на подающей и обратной линии ставьте показывающие термометры. Ведь если разница температуры между подающей и обратной линией составит более 20 градусов - это является показанием как минимум прочистить фильтры, а если это не помогает, то проверить состояние теплообменника котла, насоса и других элементов в котловом контуре, которые могут вызвать затруднение в циркуляции.
- Вокруг фильтра желательно поставить манометры, по разнице показаний которых более 0.1 бар стоит выполнить прочистку для обеспечения беспрепятственной циркуляции теплоносителя.
- В случае использования полипропиленовых трубопроводов без армирования алюминиевым кислородным барьером - ставьте деаэратор для отведения из теплоносителя воздуха.
- Магистральные трубопроводы после отведения от котла располагайте максимально близко к стене либо сразу закрепляйте их к коллектору RM , MK или к гидравлической стрелке GR , BM через разъемное соединение, что позволит снизить вероятность повреждения при эксплуатации.
- Участки трубопровода необходимо крепить с помощью сантехнических хомутов через каждые пол метра непосредственно к стене или монтажным профилям.