


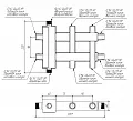
BMSS-40-3DU
Балансировочный коллектор
до 40 кВт, все контуры G ¾″, 4D-кронштейны K.UMS, подключение термодатчикаАртикул:BM 40A10 20
Основные характеристики
Материал исполнения:Нержавеющая сталь AISI 304
Количество контуров:
3
Магистральное присоединение:G ¾″ (НР)
Мощность максимальная, кВт:
40
Максимальная подача, м³/ч:
1.7
Логистические параметры
Масса брутто, кг:3
Размеры упаковки, (Д x Ш х В), мм:415 x 260 x 72
Объем упаковки, м³:0.00777
22 400 ₽ Розничная цена
В наличии город Челябинск:
14 шт
Описание
Гидрострелка предназначена для обвязки настенного котла в котельной частного дома до 250 м² с 3 контурами-потребителями в конфигурации коллектора 1+1+1, отличается компактностью и экономией на обвязке за счет применения подключений G ¾″.
① Почему BMSS-40-3DU очищает теплоноситель от воздуха и шлама лучше всех аналогов?
Встроенный нержавеющий сепаратор в виде поперечной полноразмерной перфорированной пластины:
- За счет завихрения потока самого воздухо-насыщенного теплоносителя из подающей линии котла, обеспечит эффективное всплытие пузырьков воздуха с последующим их отведением через верхний штуцер гидрострелки и подключенного к нему автоматического воздухоотводчика.
- За счет завихрения самого загрязненного шламом потока теплоносителя из обратной линии системы осаждает механические примеси в отстойнике гидрострелки с последующем их выведением через подключенный дренажный кран.
- Так же сепаратор препятствует пробиванию котловым насосом бокового контура реактивной струей, что часто вызывает паразитный поток отключенного автоматикой бокового контура.
② Как гидрострелка на 3 контура из нержавейки повышает надежность всей системы?
- Нержавеющая сталь AISI 304 (08Х18Н10) прослужит век !
- Кронштейны с регулировкой 4 параметров в комплекте позволяют отрегулировать вылет трубной обвязки таким образом, чтобы он оказалось в одной плоскости, что существенно снижает кол-во соединений, экономит фитинги и трубы, а так же работу мастера.
③ Варианты компоновок котельной с BMSS-40-3DU и их ограничения.
- Коллектор с гидрострелкой имеет 3 контура на ¾ дюйма с межосевым расстоянием 90 мм.
- Подключение котла может осуществляться как справа так и слева.
- Для изменения порядка подающих линий вертикальных потребителей нужно перевернуть коллектор на 180 градусов по горизонтальной оси.
- Для настенного котла с подачей выше 1.7 м³/ч - заказывайте модель с размерами подключений G 1″: BMSS-60-3DU.EPP .
- Если Вам нужно два из трех контуров подвести снизу, что обычно удобней для одноэтажного дома - заказывайте BMSS-40-3D в конфигурации 2+1 .
- Если Вы хотите использовать схему со встроенным между коллектором и гидрострелкой грязевиком и/или резервным электрокотлом без насоса (работающего в дежурном режиме за счет циркуляции насосов-потребителей), используйте гидрострелку GRSS-40-20 и коллектор MKSS-40-3DU
④ Как установить гидрострелку на 3 контура в двухэтажном доме?
- Радиаторы 1 этажа подключаются к нижнему контуру через насосную группу NGSS-20 с котловой температурой (рекомендуем коллекторную систему).
- Коллектор теплого пола 1 этажа подключается к боковому контуру через насосную группу NGSS-20СTS с ручной регулировкой температуры 20-43°С .
- Радиаторы 2 этажа подключаются к верхнему контуру через насосную группу NGSS-20СTS с ручной регулировкой температуры 35-60°С .
Совместимые комплекты
Универсальные спецификации
Все характеристики
Основные характеристики
Материал исполнения:
Нержавеющая сталь AISI 304
Количество контуров:
3
Максимальная подача, м³/ч:
1.7
Мощность максимальная, кВт:
40
Максимальная отапливаемая площадь, м²:
250
Магистральное присоединение:
G ¾″ (НР)
Подключения потребителей:
G ¾″ (НР)
Межосевое расстояние, мм:
90
Вылет от стены, мм:
50-65
Логистические параметры
Размеры упаковки, (Д x Ш х В), мм:
72 x 415 x 260
Объем упаковки, м³:
0.00777
Длина, мм:
415
Ширина, мм:
260
Высота, мм:
72
Документация
Готовые объекты

Отопление частного дома на 3 контура

Монтаж отопления г. Магнитогорск в частном доме

Котел одноконтурный Бугатти пример подключения в шоуруме, узнай как подключить?

Шоурум отопления ИЦ ТЕРМОДИНАМИКА - г. Челябинск, ул. Рабоче-Колхозная, 55

Ремонт отопления в частном доме Магнитогорска

Одна котельная на несколько домов совет

Монтаж отопления частного дома с гаражом в Калининграде

Отопление автомойки в Екатеринбурге

Отопление в доме из газобетона г. Красноярск

Монтаж отопления с 3D проектом в Москве

Монтаж отопления в частном доме г.Красноярск

Котельная жилого дома в Ростове

Монтаж электрокотла в частном доме Красноярск

Монтаж отопления в частном доме на базе котла Protherm

Монтаж отопления гостиницы в Геленджике

Отопление частного дома в московской области 300 кв.м

Монтаж отопления в частном доме из клееного бруса г. СПб
Применение в схемах

Схема отопления двухэтажного дома газовым котлом настенным одноконтурным (пример готовой котельной)

Cхема отопления частного дома настенным газовым котлом

Схема отопления с напольным газовым котлом и резервным электрическим

Отопление в деревянном доме

Отопление угольным котлом и резервным электрическим
Наличие у дилеров 59
Организовать поставку через другого дилера

09:00-18:00 (без выходных)
Купить в г. Владивосток из наличия в Аквадом
г. Владивосток, ул. Ильичева, 6
Позвонить менеджеру
+7 (***) ***-**-**
Позвонить в офис
+7 (***) ***-**-**
Наличие: 2 шт.

пн-пт: 08:00-18:00
Заказать по договору с ООО "Лунда" (с НДС) по коду м8622
Для проверки наличия - выбирайте Ваш город на сайте lunda.ru
Позвонить в офис
+7 (***) ***-**-**
Наличие: 2 шт.

пн-пт: 09:00-17:00 сб: 09:00-14:00
Купить в Тамбове из наличия у компании Ti-term
г. Тамбов, ул. Рылеева, 134
Позвонить в офис
+7 (***) ***-**-**
Наличие: 2 шт.

Купить в Аргуне
Позвонить в офис
+7 (***) ***-**-**
Наличие: 2 шт.

45.083289, 39.014350
Купить в сети ЭКВАТОР г. Краснодар
г. Краснодар, ул. Российская, 253 (и еще 13 магазинов)
Позвонить в офис
+7 (***) ***-**-**
Наличие: 2 шт.

пн-пт: 08:00-18:00 сб 09:00-15:00
Купить в Казани из наличия с бесплатной доставкой по Татарстану у Лунды
г. Казань, ул. Оренбургский тракт, 160 К2
Позвонить менеджеру
+7 (***) ***-**-**
Позвонить в офис
+7 (***) ***-**-**
Наличие: 2 шт.

пн-пт 08:30-17:30
В Кургане можно купить из наличия у САНТХЕРЕСУРСА
г. Курган, ул. Дзержинского, 62/3
Позвонить в офис
+7 (***) ***-**-**
Наличие: 2 шт.

пн-пт: 08:00-18:00
Купить в г. Ростов-на-Дону из наличия с бесплатной доставкой у Лунды
г. Ростов-на-Дону, 1-й км а/д 60К-9, 7/10
Позвонить менеджеру
+7 (***) ***-**-**
Позвонить в офис
+7 (***) ***-**-**
Наличие: 2 шт.

пн-пт: 08:00-18:00
Купить в г. Петрозаводск из наличия у Лунды
г. Петрозаводск, ул. Муезерская, 15 А
Позвонить в офис
+7 (***) ***-**-**
Наличие: 2 шт.

пн-пт: 08:00-18:00
Купить в г.Нижний Новгород из наличия у Лунды
г. Нижний Новгород, ул. Кащенко, 4Б
Позвонить в офис
+7 (***) ***-**-**
Наличие: 2 шт.

пн-пт: 08:00-18:00
Купить в г. Тула из наличия у Лунды
г. Тула, ул. Рязанская, 46
Позвонить в офис
+7 (***) ***-**-**
Наличие: 2 шт.

пн-пт: 08:00-18:00
Купить в г. Брянск из наличия у Лунды
г. Брянск, ул. Литейная, 3
Позвонить в офис
+7 (***) ***-**-**
Наличие: 2 шт.

пн-пт: 08:00-18:00
Купить в г. Сочи из наличия у Лунды
г. Сочи, ул. Водораздельная, 5 С1
Позвонить в офис
+7 (***) ***-**-**
Наличие: 2 шт.

пн-пт: 08:00-18:00
Купить в г. Краснодар из наличия у Лунды
г. Краснодар, ул. Лизы Чайкиной, 15 С3
Позвонить в офис
+7 (***) ***-**-**
Наличие: 2 шт.

пн-пт: 08:00-18:00
Купить в г. Великий Новгород из наличия у Лунды
г. Великий Новгород, ул. Большая Санкт-Петербургская, 82А
Позвонить в офис
+7 (***) ***-**-**
Наличие: 2 шт.

пн-пт: 08:00-18:00
Купить в г. Новороссийск из наличия у Лунды
г. Новороссийск, Приморский р-н, с. Цемдолина, ул. Ленина, 6В
Позвонить в офис
+7 (***) ***-**-**
Наличие: 2 шт.

пн-пт: 08:00-18:00
Купить в Набережных Челнах из наличия у Лунды
г. Набережные Челны, ул. Старосармановская, 29 А
Позвонить в офис
+7 (***) ***-**-**
Наличие: 2 шт.

пн-пт: 08:00-18:00
Купить в г. Чебоксары из наличия у Лунды
г. Чебоксары, проезд Машиностроителей, 1 Ч, оф. бокс 10
Позвонить в офис
+7 (***) ***-**-**
Наличие: 2 шт.

пн-пт: 08:00-18:00
Купить в г. Рязань из наличия у Лунды
г. Рязань, проезд Яблочкова, 6 С1
Позвонить в офис
+7 (***) ***-**-**
Наличие: 2 шт.

пн-пт: 08:00-18:00
Купить в г. Липецк из наличия у Лунды
г. Липецк, ул. Гагарина, 69
Позвонить в офис
+7 (***) ***-**-**
Наличие: 2 шт.

пн-пт: 08:00-18:00
Купить в г. Белгород из наличия у Лунды
г. Белгород, ул. Корочанская, 132 Д
Позвонить в офис
+7 (***) ***-**-**
Наличие: 2 шт.

пн-пт: 08:00-18:00
Купить в г. Пенза из наличия у Лунды
г. Пенза, ул. Светлая, 50 Б
Позвонить в офис
+7 (***) ***-**-**
Наличие: 2 шт.

пн-пт: 08:00-18:00
Купить в г. Саранск из наличия у Лунды
г. Саранск, ул. Строительная, 32 В
Позвонить в офис
+7 (***) ***-**-**
Наличие: 2 шт.

пн-пт: 08:00-18:00
Купить в Самаре из наличия у Лунды
г. Саратов, ул. С.Ф.Тархова, 27 А
Позвонить в офис
+7 (***) ***-**-**
Наличие: 2 шт.

пн-пт: 08:00-18:00
Купить в г. Орёл из наличия у Лунды
г. Орёл, ул. Цветаева, 1М
Позвонить в офис
+7 (***) ***-**-**
Наличие: 2 шт.

пн-пт: 08:00-18:00
Купить в г. Смоленск из наличия у Лунды
г. Смоленск, пр. Трамвайный, 6 А
Позвонить в офис
+7 (***) ***-**-**
Наличие: 2 шт.

пн-пт: 08:00-18:00
Купить в Сочи (Адлер) из наличия у Лунды
г. Адлер, ул. Энергетиков, 7 Б
Позвонить в офис
+7 (***) ***-**-**
Наличие: 2 шт.

пн-пт: 08:00-18:00
Купить в г. Сестрорецк из наличия у Лунды
г. Сестрорецк, Приморское шоссе, 260 А
Позвонить в офис
+7 (***) ***-**-**
Наличие: 2 шт.

пн-пт: 08:00-18:00
Купить в г. Уфа из наличия у Лунды
г. Уфа, ул. Баязита Бикбая, 2/2
Позвонить в офис
+7 (***) ***-**-**
Наличие: 2 шт.

пн-пт 09:00-18:00
Купить в Челябинске из наличия у Лунды
г. Челябинск, ул. Каслинская, 5
Позвонить в офис
+7 (***) ***-**-**
Наличие: 2 шт.

пн-пт: 08:00-18:00
Купить в Калуге наличия у Лунды
г. Калуга, ул. Болдина, 77 К2
Позвонить в офис
+7 (***) ***-**-**
Наличие: 2 шт.

пн-пт: 08:00-18:00
Купить в г. Воронеж из наличия у Лунды
г. Воронеж, ул. Планетная, 26
Позвонить в офис
+7 (***) ***-**-**
Наличие: 2 шт.

пн-пт: 08:00-18:00
Купить в Обнинске из наличия у Лунды
г. Обнинск, ул. Циолковского, 8
Позвонить в офис
+7 (***) ***-**-**
Наличие: 2 шт.

пн-пт 09:00-19:00 сб 09:00-17:00 вс 09:00-15:00
Купить из наличия с самовывозом из магазина
г. Воронеж, ул. Текстильщиков, 2 В
Позвонить в офис
+7 (***) ***-**-**
Наличие: 2 шт.

пн-пт 09:00-19:00 сб 09:00-17:00
Купить из наличия с самовывозом из магазина
г. Липецк, с. Сырское, Воронежское шоссе, 35 (БЦ «Воронежский Проспект»)
Позвонить в офис
+7 (***) ***-**-**
Наличие: 2 шт.

пн-пт 08:00-18:00 сб 09:00-17:00
Купить из наличия с самовывозом из магазина
г. Тамбов, ул. Бастионная, 8 Ж
Позвонить в офис
+7 (***) ***-**-**
Наличие: 2 шт.

пн-пт: 08:00-18:00
Купить из наличия на Варшавском шоссе г. Москва - Северное Бутово
г. Москва, ул. Старобитцевская, 5 С2, офис 3
Позвонить в офис
+7 (***) ***-**-**
Наличие: 2 шт.

пн-пт: 08:00-18:00
Купить из наличия на Каширском шоссе г. Москва
г. Москва, ул. Котляковская, 5
Позвонить в офис
+7 (***) ***-**-**
Наличие: 2 шт.

пн-пт: 08:00-18:00 +7 (495) 661-60-60
Купить из наличия на Боровском шоссе г. Москва (м. Озерная), Солнцево, Новопеределкино
г. Москва, ул. Наташи Ковшовой, 14 С2
Позвонить в офис
+7 (***) ***-**-**
Наличие: 2 шт.

пн-пт: 08:00-18:00
Купить из наличия на Ленинградском шоссе г. Москва - Химки
г. Москва, ул. Правобережная, 1 Б
Позвонить в офис
+7 (***) ***-**-**
Наличие: 2 шт.

пн-пт: 08:00-18:00
Купить из наличия на Рязанском проспекте г. Москва
г. Москва, проезд Сормовский, 11/7
Позвонить в офис
+7 (***) ***-**-**
Наличие: 2 шт.

пн-пт: 08:00-18:00
Купить из наличия на Волоколамском шоссе г. Москва р-н Тушино
г. Москва, ул. Вишнёвая, 9к1
Позвонить в офис
+7 (***) ***-**-**
Наличие: 2 шт.

пн-пт: 08:00-18:00
Купить из наличия на Киевском шоссе г. Москва, Обнинск, Белоусово
г. Обнинск, ул. Циолковского, 8
Позвонить в офис
+7 (***) ***-**-**
Наличие: 2 шт.

пн-пт: 08:00-18:00
Купить из наличия на Дмитровском шоссе г. Москва Догопрудный, Шереметьево, Грибки
д. Грибки, ул. Адмиральская, 4с1
Позвонить в офис
+7 (***) ***-**-**
Наличие: 2 шт.

пн-пт: 08:00-18:00
Купить из наличия на Можайском шоссе г. Москва, Большие и Малые Вязёмы, Краснознаменск
д. Малые Вязёмы, Петровский проезд, 2с2
Позвонить в офис
+7 (***) ***-**-**
Наличие: 2 шт.

пн-пт 09:00-18.00
Купить в Екатеринбурге у СТИМЭК из наличия
г. Екатеринбург, ул. Черняховского, д. 86, корпус 6, 1 этаж
Позвонить в офис
+7 (***) ***-**-**
Наличие: 1 шт.

09:00-18:00 (без выходных)
Из наличия в Приморском крае можно купить у АКВАДОМА с бесплатной доставкой по Владивостоку
г. Владивосток, пр. 100-лет Владивостоку, 26
Позвонить в офис
+7 (***) ***-**-**
Наличие: 1 шт.

09:00-18:00 (без выходных)
Из наличия в Приморском крае можно купить у АКВАДОМА с бесплатной доставкой по Владивостоку
г. Большой Камень, ул. Гагарина, 49
Позвонить в офис
+7 (***) ***-**-**
Наличие: 1 шт.

09:00-18:00 (без выходных)
Из наличия в Приморском крае можно купить у АКВАДОМА с бесплатной доставкой по Владивостоку
г. Партизанск, Переулок Бойкий, 2/1
Позвонить в офис
+7 (***) ***-**-**
Наличие: 1 шт.

пн-сб: 09:00-18.00 вс 10:00-17:00
Из наличия в Приморском крае можно купить у АКВАДОМА с бесплатной доставкой по Владивостоку
г. Владивосток, ул. Бородинская, 46/50 (ТЦ «Виктория», пав. 33)
Позвонить менеджеру
+7 (***) ***-**-**
Позвонить в офис
+7 (***) ***-**-**
Наличие: 1 шт.

пн-пт: 09:00-18:00 (без выходных)
Из наличия в Приморском крае можно купить у АКВАДОМА с бесплатной доставкой по Владивостоку
г. Владивосток, ул. Маковского, 36
Позвонить менеджеру
+7 (***) ***-**-**
Позвонить в офис
+7 (***) ***-**-**
Наличие: 1 шт.

пн-сб: 09:00-18:00 вс: 10:00-17:00
Из наличия в Приморском крае можно купить у АКВАДОМА с бесплатной доставкой по Владивостоку
г. Артем, ул. 1-я Рабочая, 16 (ТЦ «Регион», пав. 8)
Позвонить в офис
+7 (***) ***-**-**
Наличие: 1 шт.

09:00-18:00 (без выходных)
Из наличия в Приморском крае можно купить у АКВАДОМА с бесплатной доставкой по Владивостоку
г. Артем, ул. 1-я Рабочая, 44А
Позвонить в офис
+7 (***) ***-**-**
Наличие: 1 шт.

09:00-18:00 (без выходных)
Из наличия в Приморском крае можно купить у АКВАДОМА с бесплатной доставкой по Владивостоку
г. Уссурийск, ул.Советская, 96
Позвонить в офис
+7 (***) ***-**-**
Наличие: 1 шт.

09:00-18:00 (без выходных)
Из наличия в Приморском крае можно купить у АКВАДОМА с бесплатной доставкой по Владивостоку
г. Уссурийск, ул. Комсомольская, 91
Позвонить в офис
+7 (***) ***-**-**
Наличие: 1 шт.

09:00-18:00 (без выходных)
Из наличия в Приморском крае можно купить у АКВАДОМА с бесплатной доставкой по Владивостоку
г. Находка, ул. Шоссейная, 94Д (ТЦ «Удача»)
Позвонить менеджеру
+7 (***) ***-**-**
Позвонить в офис
+7 (***) ***-**-**
Наличие: 1 шт.

09:00-18:00 (без выходных)
Из наличия в Приморском крае можно купить у АКВАДОМА с бесплатной доставкой по Владивостоку
г. Спасск-Дальний, ул. Советская, 106/1
Позвонить в офис
+7 (***) ***-**-**
Наличие: 1 шт.

09:00-18:00 (без выходных)
Из наличия в Приморском крае можно купить у АКВАДОМА с бесплатной доставкой по Владивостоку
г. Арсеньев, ул. Октябрьская, 37
Позвонить в офис
+7 (***) ***-**-**
Наличие: 1 шт.

Купить из наличия в Самаре
г. Саратов, ул. Усть-Курдюмская, 1
Позвонить в офис
+7 (***) ***-**-**
Наличие: 1 шт.

пн-пт 09:00-18.00
Купить в Перми у СТИМЭК с доставкой 2-3 дня
г. Пермь, ул. Героев Хасана 46 литера Ф, оф. 232
Позвонить в офис
+7 (***) ***-**-**

пн-пт 09:00-18.00
Купить в Тюмени через СТИМЭК с доставкой за 2-3 дня
г. Тюмень, ул.Авторемонтная д. 1, база Радуга, склад 1, 1 этаж
Позвонить в офис
+7 (***) ***-**-**

пн-пт 09:00-18.00
Купить в Челябинске у СТИМЭК с доставкой 2-3 дня
г. Челябинск, п.Шершни, ул. Центральная 3Б, корпус 1
Позвонить менеджеру
+7 (***) ***-**-**
Позвонить в офис
+7 (***) ***-**-**

пн-сб 9:00-18:00
Заказать в Тереме с бесплатной доставкой до г. Москва (ЦКАД: Климовск, Подольске, Александровка)
11 точек продаж по Москве
Позвонить в офис
+7 (***) ***-**-**

пн-пт 09:00-19:00 сб 10:00-17:00
Заказать в ЭТМ через iPro с отсрочкой платежа и бесплатной доставкой по г. Псков, Великие Луки и др. городах Псковской области
г. Псков, пр. Рижский, 94 В
Позвонить в офис
+7 (***) ***-**-**

Заказать у Лунды с бесплатной доставкой в г. Вологда
г. Вологда (хоум офис)
Позвонить в офис
+7 (***) ***-**-**

пн-пт 08:00-17:30
Заказать в ЭТМ - iPro с отсрочкой платежа и бесплатной доставкой в г. Санкт-Петербург (СПб) и Ленинградской области
г. Санкт-Петербург, ул. Заозерная, д.14В
Позвонить менеджеру
+7 (***) ***-**-**
Позвонить в офис
+7 (***) ***-**-**

пн-пт 08:30-18:30
Заказать в ЭТМ через iPro с отсрочкой платежа и бесплатной доставкой по г. Воронеж
г. Воронеж, пр.Труда, 111
Позвонить в офис
+7 (***) ***-**-**

пн-пт 09:00-19:00
Заказать в ЭТМ через iPro с отсрочкой платежа по г. Екатеринбург, Арамиль, Верхняя Пышма (доставка =190 р.)
г. Екатеринбург, пер.Базовый, 47 (и еще 6 филиалов)
Позвонить менеджеру
+7 (***) ***-**-**
Позвонить в офис
+7 (***) ***-**-**

пн-пт 09:00-19:00
Заказать в ЭТМ через iPro с отсрочкой платежа и бесплатной доставкой по г. Жуковский
г. Жуковский, ул. Гагарина, 85
Позвонить в офис
+7 (***) ***-**-**

пн-пт 09:00-19:00 сб 09:00-16:00
Заказать в ЭТМ через iPro с отсрочкой платежа и бесплатной доставкой по г. Казань (Татарстан)
5 филиалов в г. Казань: [1] ул.Бухарская, 89 [2] ул.Сибирский Тракт, 34Л [3] пр.Ямашева, 95 [4] ул.Краснококшайская, 119 [5] пос. Новониколаевский, промплощадка №1, 1/1
Позвонить в офис
+7 (***) ***-**-**

пн-пт 09:00-18:00 cб 09:00-16:00
Заказать в ЭТМ через iPro с отсрочкой платежа и бесплатной доставкой по г. Курган
г. Курган, ул. Омская, 131 С1
Позвонить в офис
+7 (***) ***-**-**

пн-пт 09:00-19:00
Заказать в ЭТМ через iPro с отсрочкой платежа и бесплатной доставкой по г. Малоярославец, Обнинск (Калужская область)
Калужская обл., Малоярославский р-н, с. Маклино, Промзона Меньшовка-1
Позвонить в офис
+7 (***) ***-**-**

пн-пт 09:00-19:00
Заказать в ЭТМ через iPro с отсрочкой платежа и бесплатной доставкой по г. Новосибирск
5 офисов продаж по Новосибирску: [1] Пашинское шоссе, 1 К1 [2] ул. Оловозаводская, 20 К1 [3] ул. Семьи Шамшиных, 64 [4] ул. Зыряновская, 61 [5] ул. Титова, 9
Позвонить в офис
+7 (***) ***-**-**

пн-пт 08:00-18:00
Заказать в ЭТМ через iPro с отсрочкой платежа и бесплатной доставкой по г. Пенза
2 филиалов в г.Пенза: [1] ул. Аустрина, 63 К5 [2] пр. Победы, 33
Позвонить в офис
+7 (***) ***-**-**

пн-пт 09:00-19:00
Заказать в ЭТМ через iPro с отсрочкой платежа и бесплатной доставкой по г. Самара
4 филиала в г. Самара: [1] Самарcкая обл., Стройкерамика пгт., Пожарный проезд, д.1 [2] ул. Гаражная, 5 [3] ул. Главная, 23 [4] ул. Московское шоссе, 306
Позвонить в офис
+7 (***) ***-**-**

пн-пт 09:00-18:00
Заказать через iPro с бесплатной доставкой до г. Владивосток в течении 10 раб. дней под договору с ЭТМ
г. Владивосток, ул. Заречная, 35
Позвонить в офис
+7 (***) ***-**-**

пн-пт 08:00-17:30
Заказать в ЭТМ через iPro с отсрочкой платежа и бесплатной доставкой по г. Благовещенск
г. Благовещенск, Серышевский переулок, 5
Позвонить в офис
+7 (***) ***-**-**

пн-пт 09:00-19:00
Заказать в ЭТМ через iPro с отсрочкой платежа и бесплатной доставкой по г. Иркутск
г. Иркутск, ул. Старокузьмихинская, 71
Позвонить в офис
+7 (***) ***-**-**

пн-пт 09:00-19:00
Заказать в ЭТМ через iPro с отсрочкой платежа и бесплатной доставкой по г. Сургут, Новый Уренгой, Нижневартовск
г. Сургут, ул. Комплектовочная, 5
Позвонить в офис
+7 (***) ***-**-**

пн-пт 09:00-18:00
Заказать в ЭТМ через iPro с отсрочкой платежа и бесплатной доставкой по г. Сыктывкар, Ухта, Воркута, Печора, Усинск, Сосногорск
г. Сыктывкар, ул. Пушкина, 63
Позвонить в офис
+7 (***) ***-**-**

пн-пт 09:00-19:00
Заказать в ЭТМ через iPro с отсрочкой платежа и бесплатной доставкой по г. Хабаровск
г. Хабаровск, ул. Краснодарская, 102Б
Позвонить в офис
+7 (***) ***-**-**

пн-пт 09:00-19:00
Заказать в ЭТМ через iPro с отсрочкой платежа и доставкой по г. Ярославль, Рыбинск, Тутаев, Переславль-Залесский
г. Ярославль, пр. Октября, 89/1
Позвонить в офис
+7 (***) ***-**-**

пн-пт 09:00-18:00 сб 09:00-15:00
Заказать в ЭТМ через iPro с отсрочкой платежа и бесплатной доставкой по г. Красноярск
г. Красноярск, ул. Дудинская, 16 С3
Позвонить в офис
+7 (***) ***-**-**
Заказать с бесплатной доставкой до г. СПб в течении 10 раб. дней
г. Санкт-Петербург, ул. Киевская, 5Т
Позвонить менеджеру
+7 (***) ***-**-**
Позвонить в офис
+7 (***) ***-**-**

пн-пт 09:00-18:00 сб.09:00-16:00
Заказать в ЭТМ через iPro и бесплатной доставкой до г. Стерлитамак, Ишимбай, Салават, Мелеуз, Кумертау
г. Стерлитамак, ул. Вокзальная, 9А, лит. Е
Позвонить в офис
+7 (***) ***-**-**

пн-пт 09:00-19:00
Заказать в ЭТМ через iPro с бесплатной доставкой до г. Москва, ул. Мнёвники, 10К1
6 филиалов в г. Москва + 6 за МКАД
Позвонить в офис
+7 (***) ***-**-**

пн-пт 09:00-19:30 сб 09:00-16:00
Заказать в ЭТМ через iPro с отсрочкой платежа и бесплатной доставкой по г. Химки
г. Химки, пр. Мельникова, 32А
Позвонить в офис
+7 (***) ***-**-**

пн-пт 06:00-23:59
Заказать в ЭТМ через iPro с отсрочкой платежа и бесплатной доставкой по г. Самара
г. Санкт-Петербург, п. Шушары, Ленсоветовская дорога, 12 К2 литера Б
Позвонить в офис
+7 (***) ***-**-**

пн-пт 09:00-18:00 сб 09:00-17:00
Заказать в ЭТМ через iPro с отсрочкой платежа и бесплатной доставкой по г. Омск
г. Омск, пр. Мира, 71/3
Позвонить в офис
+7 (***) ***-**-**

пн-пт 09:00-19:00 сб 10:00-16:00
Заказать в ЭТМ через iPro с отсрочкой платежа по г. Пермь
г. Пермь, ул. Героев Хасана, 100 (и еще 4 филиала)
Позвонить в офис
+7 (***) ***-**-**

пн-пт 08:30-17:30 сб 08:30-15:30
Заказать в ЭТМ через iPro с отсрочкой платежа и бесплатной доставкой по г. Ставрополь
г. Ставрополь, ул. Доваторцев, 60
Позвонить менеджеру
+7 (***) ***-**-**
Позвонить в офис
+7 (***) ***-**-**

пн-пт 09:00-19:00 сб 09:00-16:00
Заказать в ЭТМ через iPro с отсрочкой платежа и бесплатной доставкой по г. Ростов-на-Дону
г. Ростов-на-Дону, ул. Вересаева, 103В, 1 секция
Позвонить менеджеру
+7 (***) ***-**-**
Позвонить в офис
+7 (***) ***-**-**







